L'intérieur
L'utilisation de portes sombres dans les intérieurs des appartements
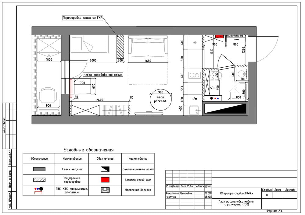
La disposition de l'appartement est de 26 mètres carrés. sous la forme d'un studio est idéal pour les jeunes familles ou les personnes créatives. Beaucoup de gens avant d'acheter se demandent comment meubler un appartement avec une photo studio de 26 carrés, nous en reparlerons plus tard.

Vous ne pouvez pas vous promener sur 26 places, mais sur une telle zone, vous pouvez organiser une maison confortable et attrayante
Caractéristiques d'un studio de 26 mètres carrés. m
Table des matières
- Caractéristiques d'un studio de 26 mètres carrés. m
- Avantages et inconvénients d'un studio de 26 mètres carrés. m
- Agencement et zonage d'un studio de 26 places
- Quel style choisir pour un studio de 26 m². m
- Options de décoration des chambres dans un studio de 26 mètres carrés. m
- Design d'intérieur de divers studios de 26 mètres carrés. m
- La palette de couleurs et l'éclairage dans la conception d'un studio de 26 mètres carrés. m
- Le choix du mobilier dans un studio de 26 m². m. et comment l'utiliser pour économiser de l'espace
- Vidéo: Vue d'ensemble d'un appartement de 26 mètres carrés. m. pour une famille de trois personnes
- Galerie photo: 50 options intérieures pour un studio
Pour la première fois, les studios ont commencé à apparaître dans de nouveaux foyers en Europe, mais de nos jours leur popularité augmente dans tous les pays du monde. Pour créer un environnement confortable, il est nécessaire de prendre en compte toutes les fonctionnalités d'un studio de petite taille.
Il est important de choisir des meubles de formes et de tailles laconiques. L'ensemble de meubles doit être compact et pratique. La présence de compartiments cachés vous permettra de ranger des objets personnels, des bagatelles domestiques, sans encombrer l'espace.

Dans un appartement d'une pièce il ne devrait pas y avoir de meubles en excès
La décoration originale de l'appartement mettra l'accent sur le goût esthétique des propriétaires, ajoutera de l'exclusivité. Par exemple, des photographies thématiques sur toile, des peintures, des coussins de canapé uniques, des plantes en pot et d'autres options peuvent être utilisées. Refusez de nombreux petits produits souvenirs, structures suspendues - ils sont capables de réduire visuellement la zone déjà petite.
Une condition préalable à l'espace ouvert d'un studio est l'installation d'un système de climatisation ou de ventilation de haute qualité, y compris une hotte puissante dans la cuisine.
En écoutant ces paramètres, les propriétaires seront en mesure de créer un environnement incroyablement élégant et confortable de 26 mètres carrés.

Si vous ne pouvez pas créer un appartement par vous-même, il est préférable de contacter un spécialiste
Avantages et inconvénients d'un studio de 26 mètres carrés. m
Les avantages des petits logements comprennent les facteurs suivants:
- Après avoir combiné les zones, la salle sera remplie de beaucoup d'espace libre.
- Les studios présentent de hauts plafonds. Ils vous permettent de connecter créativité et imagination pour créer le maximum de confort.
- Vous pouvez corriger la lumière naturelle avec la disposition correcte de l'ensemble de meubles. Cette approche est capable de rendre la pièce lumineuse et spacieuse.
- Facile à nettoyer.
- L'absence de barrières crée l'impression de légèreté, de légèreté.
Les inconvénients sont les suivants:
- L'absence de cloisons murales minimise la possibilité de créer une zone personnelle à l'abri des regards indiscrets.
- La nécessité d'équiper le studio d'un système de ventilation moderne et suffisamment puissant. Dans une telle pièce, la cuisine n'est pas séparée des autres pièces, il y a donc un risque que les arômes des aliments cuits soient absorbés dans les meubles, les accessoires textiles.

Étant donné la quadrature de la pièce, la division de l'espace en pièces séparées sera un pur gaspillage
Agencement et zonage d'un studio de 26 places
Internet présente de nombreuses idées insolites sur la façon d'équiper un studio de 26 mètres d'une photo. En fait, il n'y a rien de compliqué à donner du confort à une petite pièce. Les concepteurs et les équipes de construction recommandent d'accorder une attention particulière à la planification et au zonage des biens immobiliers.

Les facteurs déterminants dans l'aménagement du studio sont le nombre et l'emplacement des fenêtres, la forme géométrique de la pièce et l'emplacement des communications
Une disposition appropriée de l'espace de vie aidera à respecter la séquence de chaque étape.
- Assurez-vous de corriger la première variante du projet. Il est possible de le faire par vos propres efforts ou de demander l'aide de spécialistes. Les concepteurs peuvent refléter les préférences des propriétaires, en tenant compte des dimensions de l'appartement, de la disposition de l'immeuble, des caractéristiques du placement de la communication.
- Le calcul correct de la surface vous permettra de sélectionner correctement le mobilier et les structures du bâtiment.
- L'atmosphère générale est définie par le style de design choisi et la palette de nuances qui prévalent à l'intérieur.
- Le zonage du studio est possible d'aménager à l'aide d'accents. Pour ce faire, utilisez le niveau d'intensité lumineuse, les meubles (armoires, comptoirs de bar, étagères).
Il est recommandé de faire attention à la localisation des zones (pour le travail, le repos, la cuisine et les repas). Dans la plupart des cas, un environnement confortable est obtenu grâce à l'utilisation d'un style moderne, de meubles rembourrés confortables dans les zones de loisirs, d'une cuisine multifonctionnelle. Un charme particulier est donné par un éclairage à plusieurs niveaux.

Tout d'abord, ils déterminent l'aménagement du coin cuisine, car cette partie de l'appartement est reliée au réseau d'aqueduc et d'égout
Lorsque vous pensez à l'agencement d'un petit studio, ne manquez pas un seul détail. Un appartement de 26 mètres carrés est petit, donc même un centimètre libre doit être utilisé au maximum.

Afin de ne pas rater chaque petit détail, faites un plan détaillé de votre futur appartement
Quel style choisir pour un studio de 26 m². m
Même avec vos propres efforts, il est possible de créer un design d'intérieur compétent dans un petit studio. Pour prendre la bonne décision, nous vous recommandons de vous familiariser avec les domaines les plus pertinents de la conception d'espace. Pour un studio de 26 places, il y a de telles idées dans l'aménagement de l'intérieur:
Le style du vieux Paris
Ce style peut également être appelé «Provence». Des textures légères et décolorées peuvent augmenter visuellement l'espace de vie. Un mobilier simple mais multifonctionnel mettra l'accent sur le goût esthétique des propriétaires.

La Provence est associée à une ambiance familiale particulière, chaleur et confort.
Loft
Ce concept vous permettra de combiner une décoration et une décoration simples avec des composants naturels. Par exemple, une combinaison de murs peints ou de papier peint uni avec des meubles et des structures en bois semble très élégante.

La conception d'un appartement dans le style loft est souvent choisie par des célibataires invétérés
Moderne
Aujourd'hui, plus que jamais, décoration monophonique aux couleurs tendances, la technologie multifonctionnelle est recherchée. Ce concept de design est en mesure d'apporter un appartement de 26 mètres carrés. m. un maximum de confort.

Un jeu de couleurs harmonieusement sélectionné peut visuellement augmenter la superficie du studio moderne
Autres variations
Un studio de 26 mètres carrés peut également être décoré dans ces deux styles.
Minimalisme, dont les avantages seront une décoration simple, des meubles aux lignes laconiques et simples, des formes.

Intérieurs minimalistes avec poignées
"Scandinavie." Faire face parfaitement à l'expansion visuelle de l'espace, créant un design unique. Pour ce faire, vous devez opter pour des teintes claires de décoration.

Intérieur de studio de style scandinave pour une famille de deux personnes - une mère et un écolier
Options de décoration des chambres dans un studio de 26 mètres carrés. m
L'agencement de l'espace de vie est un processus long et fastidieux qui nécessite une approche particulière. À ce stade, il est nécessaire de prendre en compte de nombreux facteurs, détails, car une atmosphère chaleureuse en dépend.
- Chambre et salon. Le salon occupe une place centrale dans un petit studio. Il est possible de le combiner avec la chambre. Par exemple, utilisez un canapé pliant pour vous détendre et dormir la nuit ou achetez un lit confortable, équipez-le d'une bordure et de petits canapés. Ce sera un excellent assistant dans l'espace de zonage.

Un canapé pliant prend peu de place dans la journée, et la nuit transforme la pièce en une chambre confortable
- Coin cuisine dans le séjour. La photo design du studio de 26 m² démontre également une option intéressante - combiner le salon et la cuisine. Pour séparer la chambre du coin cuisine, vous pouvez utiliser une cloison, un écran ou un rideau.

1/4 de tout l'appartement est généralement alloué à la cuisine ou un peu plus s'ils veulent équiper un coin repas confortable
- La cuisine. Un coin cuisine peut être créé sur une plateforme surélevée, par exemple à l'aide de marches ou d'un podium. Placer un bar deviendra un moyen de le séparer des autres "pièces". Une autre solution optimale consiste à installer les équipements les plus volumineux (réfrigérateur, armoire haute) dans les coins de l'appartement.

Un casque linéaire ne prend pas beaucoup de place et les appareils électroménagers intégrés faciliteront l'intérieur
- Balcon La loggia peut devenir une pièce séparée. De nombreux designers proposent d'y implanter une étude, un espace de détente, de créativité. Tout dépend de la taille du balcon et de son degré d'isolation.

Sur un balcon étroit, vous pouvez organiser une étude ou une place pour un étudiant
- La salle de bain. Il peut être représenté par une salle de bain ou un joint séparé. Vous pouvez économiser de l'espace utile si vous laissez la salle de bain et les toilettes dans la même pièce. L'essentiel est de ne pas les encombrer avec des équipements et des choses inutiles.

Si vous remplacez la baignoire par une douche, même dans une petite pièce, vous pouvez adapter tout ce dont vous avez besoin, y compris une machine à laver
Design d'intérieur de divers studios de 26 mètres carrés. m
L'espace ouvert dans un petit appartement a plus d'avantages, car de nombreux propriétaires essaient de créer un design confortable et spécial. L'intérieur unique est capable de traverser toutes les lacunes exprimées ci-dessus.
- Studio rectangulaire. La disposition rectangulaire est une bonne occasion de réaliser tous les fantasmes créatifs dans les chambres. Tous les coins de l'appartement sont équipés de gros appareils, car de cette façon, l'effet d'encombrement n'est pas créé.

Un exemple de répartition délibérée de l'espace dans un studio rectangulaire
- Studio avec une fenêtre. L'intérieur du studio est de 26 mètres carrés de photographie avec un balcon et une fenêtre - c'est l'option la plus réussie. Cela crée une lumière naturelle qui peut être complétée par des nuances claires de design et des projecteurs. Tout cela peut agrandir visuellement la zone.

L'intérieur blanc comme neige sera le meilleur choix pour un appartement à fenêtre unique
- Studio avec balcon. Une telle pièce peut être battue qualitativement, divisée en une troisième vraie pièce. Dans la loggia, vous pouvez placer une table pliante, faire une pépinière, étudier ou agrandir le salon à l'aide de la voûte.

Pour laisser entrer plus de lumière dans la pièce, cela vaut la peine d'installer des portes coulissantes panoramiques entre le balcon et la pièce
La palette de couleurs et l'éclairage dans la conception d'un studio de 26 mètres carrés. m
Dans une petite pièce, il est nécessaire d'utiliser des couleurs claires et claires. Ainsi, vous pouvez rendre l'appartement plus spacieux et plus large. Utilisez des motifs de plafonds légers, des peintures crème, lait ou beiges avec de légers accents brillants dans le décor.

Le jeu de couleurs de l'intérieur d'un appartement d'une petite surface est créé sur la base de nuances claires, les tons sombres ne sont autorisés que dans les accents
Un aspect tout aussi important de l'arrangement est la création d'un bon éclairage (naturel et artificiel).La présence d'au moins une fenêtre et le placement approprié des dispositifs d'éclairage peuvent ajouter du confort à votre environnement domestique.

Pour une bonne lumière naturelle, la pièce doit avoir une grande fenêtre, idéalement panoramique
Le choix du mobilier dans un studio de 26 m². m. et comment l'utiliser pour économiser de l'espace
Toute conception d'appartement n'est pas possible sans un mobilier fonctionnel et élégant. Dans le cas d'un studio, il peut devenir un accent, un moyen d'économiser de l'espace libre.
- Comment cacher un lit? Il existe une excellente option économique - un lit pliant ou un canapé. Vous pouvez cacher la zone de couchage aux regards indiscrets à l'aide d'un écran harmonieux, d'étagères, d'une cloison ou d'un rideau.

La séparation de la zone de couchage de l'espace commun donne une sensation de confort
- Garde-manger dans la cuisine. En Europe, un placard et des étagères de cuisine sont utilisés comme garde-manger. Dans un studio de 26 mètres carrés, cela peut également être réalisé, tandis que les propriétaires reçoivent un casque fonctionnel sans réduire la surface utilisable.

Le placard intégré résoudra complètement le problème du stockage des aliments et des ustensiles de cuisine
- Cuisines sans placards suspendus et avec étagères ouvertes. Les conceptions volumineuses réduisent l'espace libre, les concepteurs recommandent donc de privilégier les étagères ouvertes dans la cuisine. Cela permettra l'utilisation rationnelle de tous les murs.

Cuisine sans armoires suspendues - cette solution est particulièrement utilisée dans les intérieurs modernes, tendant au minimalisme
Un studio avec des paramètres de vingt-six mètres carrés est un salon compact, où il n'y a aucune restriction d'espace. Comme dans l'aménagement d'un studio, il y a des salons, un coin cuisine, mais ils ne sont pas séparés les uns des autres par un mur.
Vidéo: Vue d'ensemble d'un appartement de 26 mètres carrés. m. pour une famille de trois personnes






















































