L'intérieur
Design intérieur moderne d'un studio de 24 m²
La conception des appartements vous permet de retravailler fondamentalement les bâtiments domestiques créés selon des normes typiques. Les nouvelles technologies et les possibilités d'utilisation de matériaux modernes les rendront pratiques et confortables, en utilisant de manière optimale toute la surface des pièces. Afin de développer la conception d'une ligne p44t en deux parties, vous devez prendre en compte leurs caractéristiques et leurs caractéristiques.

Le principal problème de tous les appartements dans les maisons préfabriquées est les cloisons porteuses, éliminant pratiquement le réaménagement
Caractéristiques des appartements de deux pièces de la ligne P44T
Table des matières
- Caractéristiques des appartements de deux pièces de la ligne P44T
- Caractéristiques de deux gammes p44t
- Décoration de chambre dans un appartement de deux pièces ligne p44t
- Conseils et idées pour concevoir une ligne d'appartements de deux pièces p44t
- Vidéo: Caractéristiques des maisons à panneaux de la série P44
- Photo: Exemples d'intérieurs à deux pièces
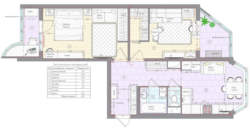
Les appartements de deux chambres dans les types de maisons préfabriquées p44t sont de deux options: type linéaire et balançoire. Parmi les caractéristiques, il convient de noter la présence d'une baie vitrée et le fait que tous les murs de l'appartement portent, à l'exception des murs de la baignoire et des toilettes, de sorte que leur démontage nécessite une coordination et n'est pas effectué dans la pratique.

Les appartements avec une disposition améliorée sont beaucoup plus spacieux que Brezhnevok et Khrushchev, ils vous permettent donc de mettre en œuvre une grande variété de solutions de conception
Caractéristiques de deux gammes p44t
Cette ligne a une surface habitable de 52 m² avec une hauteur sous plafond de plus de 2,5 mètres. Parmi les caractéristiques générales, on peut également noter une salle de bain séparée, un grand coin cuisine (10 m²). Chambres suffisamment grandes, en moyenne 12 et 18 places, qui, selon le type, diffèrent par leur emplacement. Hall d'entrée rectangulaire jusqu'à 5 m² Salle de bain et WC aux dimensions standard.

Dans différentes maisons de la série p44t, les appartements peuvent différer légèrement en termes de superficie et de taille des chambres
Appartements linéaires de deux pièces
Ce nom a été obtenu en raison de l'emplacement des fenêtres qui regardent d'un côté. Un hall d'entrée rectangulaire, dont la salle de bain et la cuisine divergent d'un côté, est une petite pièce au centre et une grande de l'autre. On pense que cette disposition donne le meilleur éclairage. Mais, la possibilité de circulation d'air en souffre. Les dirigeants sont plus petits que les gilets, mais ils coûtent également moins cher sur le marché immobilier et sont donc mieux vendus.

Exemple de mise en page
Appartements de type Swing 2 pièces
Ce type est situé à l'avant de la maison. Une caractéristique de l'aménagement est l'emplacement du hall d'entrée et la présence éventuelle d'une baie vitrée dans une grande pièce. Les vestibules sont plus spacieux et la circulation de l'air est bien meilleure. Les fenêtres des pièces sont sur la même ligne, les fenêtres de la cuisine font face à l'autre côté.

Exemple de disposition d'un gilet deux pièces
Décoration de chambre dans un appartement de deux pièces ligne p44t
La conception d'un appartement deux pièces p44t peut avoir plusieurs options, selon le nombre de personnes vivant. En réalisant des expériences avec le placement de meubles ou en utilisant des éléments de décoration, vous pouvez confortablement équiper l'appartement dans la mesure du possible en utilisant tout l'espace prévu. Ci-dessous, vous pouvez voir les projets d'appartements de 2 chambres présentés dans la gamme de maisons design p44t, des options de conception de photos pour toutes les chambres.

Le hall d'entrée de ces appartements est une sorte d'intersection avec les entrées et les sorties
Conception de couloir
La taille du couloir vous permet de placer sur son territoire plusieurs petites armoires pour chaussures et vêtements d'extérieur.Ne chargez pas le hall avec des armoires volumineuses, il doit être fonctionnel et confortable. Après tout, il a été créé afin d'accueillir tous ceux qui sont entrés et de créer les conditions les plus confortables pour retirer les chaussures et les vêtements d'extérieur.

La meilleure solution est un jeu de couleurs claires, qui en soi étend l'espace du couloir

Une étagère à chaussures avec une étagère et un cintre avec des crochets - un ensemble minimal de meubles pour un hall d'entrée dans un style moderne
Décoration de salon
Tout le temps libre est passé dans cette salle, et tous les événements cérémoniels avec la réception des invités ont lieu. Vous pouvez utiliser le zonage dans la conception du salon de la cour linéaire. Les dimensions vous permettent de le diviser en parties, ce qui en fait une petite chambre. Une telle disposition ne nécessite aucune conception juridique. Cette option convient aux familles nombreuses.

Il est plus facile de séparer le lit de couchage de l'espace commun avec un rideau occultant

Cloison coulissante en verre - une version plus moderne du zonage de la pièce
L'intérieur du salon devrait être intéressant, mais en même temps fonctionnel. Il vaut la peine d'utiliser des éléments qui créeront du confort non seulement pour les réunions avec des amis et des parents, mais également adaptés aux conditions de vie.
Décoration de cuisine
La cuisine joue un rôle important dans la conception du projet en deux parties de la ligne p 44t. En présence de seulement deux pièces, c'est souvent la cuisine qui sert de lieu de rencontre entre amis. Par conséquent, ici, il convient de prêter attention à l'utilisation la plus utile de toute la zone. Pour créer de l'espace, vous pouvez coloriser la cuisine en zones: travail et loisirs. La conception doit être réalisée dans un style tel que la cuisine puisse être préparée de manière pratique et confortable pour manger ou discuter avec des amis.

Intérieur d'une cuisine lumineuse dans un style moderne

Conception de cuisine minimaliste simple
Conception de la chambre
Pour une famille de deux personnes dans une chambre dans un appartement de deux chambres, le p44 aura fière allure dans une petite pièce. Elle peut être réalisée dans le respect du style standard: un grand lit double, une armoire, une commode à linge. Il doit être fonctionnel et placé tout ce qui est nécessaire à la vie. La chambre est l'une des parties les plus intimes de l'appartement, devrait contenir tous les objets personnels pour deux.

Petite chambre avec un système de rangement bien pensé sous forme d'armoires encastrées

Chambre de style scandinave avec un bureau au lieu d'un rebord de fenêtre
Design enfant
Si la famille comprend plus de deux personnes, une petite pièce doit être utilisée pour créer une pépinière. L'exécution d'une petite pièce dans la conception de l'appartement p44t d'une ligne de deux pièces en pépinière convient universellement à un ou deux enfants. En utilisant des matériaux hypoallergéniques et des meubles pour enfants pratiques, vous pouvez créer un confort pour les enfants, qui sera à la fois élégant et pratique. Chez l'enfant d'un tel enfant, il sera à l'aise d'étudier, d'étudier, de jouer et d'inviter ses amis.

Lit haut avec espace de rangement pour jouets et jouets dans la chambre du garçon

Un lit superposé intégré dans une niche est une excellente solution pour deux enfants
Conception de salle de bain et WC
Lors de la conception d'une salle de bain, il est important de prendre en compte les préférences de tous les résidents. La combinaison de la salle de bain augmente l'espace pratique, ce qui fait que le volume de la pièce fait plus. Mais cela crée de l'inconfort, car cela ne permet pas à plusieurs membres de la famille de visiter les toilettes et la salle de bain en même temps.

Salle de bain élégante avec des carreaux de céramique contrastants

Salle de bain combinée de style mixte avec un décor original
Dans la salle de bain combinée, vous pouvez placer une machine à laver. Les armoires à charnières pour les cosmétiques et les armoires pour le linge sale s'adapteront également parfaitement. La salle de bain aura l'air plus harmonieuse, tandis que pour économiser de l'espace dans une salle de bain séparée, il vaut la peine d'utiliser une douche.

La cabine de douche angulaire prend un minimum de place, laissant de la place pour une machine à laver

Pour finir une petite toilette, vous devez utiliser des teintes claires
Décoration du balcon
Lors de la conception du balcon d'un appartement de 2 pièces de la ligne p44t, vous pouvez utiliser différentes options: en faire un petit bureau personnel, un espace sportif ou une serre. L'essentiel est d'utiliser la bonne répartition de l'espace libre et de protéger des températures extérieures.

Une loggia bien entretenue est parfaite pour un coin sportif pour enfants

L'étude d'un adolescent dans un style loft
Conseils et idées pour concevoir une ligne d'appartements de deux pièces p44t
L'essentiel dans le développement de la conception de la 44e ligne de deux pièces est de combiner les souhaits de tous les membres de la famille. Il convient de considérer son emplacement par rapport aux points cardinaux, pour régler l'éclairage à l'intérieur du boîtier.
Lors du choix des styles de conception, vous pouvez utiliser les solutions suivantes:
- Un style classique qui ne nécessite pas de mobilier de luxe, de luxe et coûteux.

Le design intérieur classique est plus adapté aux pièces assez spacieuses
- Salut-tech. Le minimalisme convient à une famille de deux personnes.

La haute technologie est souvent choisie par des jeunes qui suivent l’époque.
- Néo-baroque. N'avoir que le mobilier nécessaire laissera une grande quantité d'espace libre.

Dans le mobilier néo-baroque prend le dessus, cher et beau
En utilisant des solutions de design, vous pouvez créer un intérieur très intéressant et attrayant pour la vie. À titre de comparaison, il y a des appartements de deux pièces avec 44 designs différents sur la photo.
Vidéo: Caractéristiques des maisons à panneaux de la série P44






















































