Dapur
Reka bentuk dapur dalam warna limau
Dapur direka untuk memenuhi keperluan yang paling diperlukan. Di sini, seluruh keluarga mengumpulkan bulatan rapat untuk minum teh dan bercakap, membincangkan masalah mendidih. Oleh itu, adalah penting bahawa reka bentuk dalaman menawarkan kemudahan. Ia perlu mengatur ruang dapur supaya jiwa itu sendiri bertanya di sana. Tetapi jika tidak terdapat ruang kosong yang mencukupi, anda perlu mencipta pelbagai penyelesaian yang luar biasa. Ini adalah perlu untuk cuba menampung seluruh dapur.

Ia hanya mustahil untuk menyesuaikan segala sesuatu ke dalam ruang yang terhad - anda perlu memilih yang paling perlu dan menghilangkan barang yang jarang digunakan
Artikel itu menceritakan bagaimana untuk merancang reka bentuk dapur 5 5 meter persegi di Khrushchev, sebuah gambar yang akan anda lihat tanpa sebarang pertanyaan tambahan. Untuk melakukan ini, kami akan menggunakan bantuan pakar dalam bidang seni reka bentuk. Pastikan anda membaca artikel hingga akhir. Di sana anda akan dapati bonus yang menyenangkan dalam bentuk pemilihan gambar reka bentuk dapur moden.
Ciri Reka Bentuk Dapur Kecil
Kandungan
Pada zaman USSR, pereka Khrushchev berusaha untuk memaksimumkan fungsi ruang tersebut. Selain itu, terdapat bilangan meter persegi yang minimum. Tetapi kerana terdapat banyak pangsapuri seperti itu di negara kita, keperluan timbul untuk mengetahui bagaimana cara menguruskan pangsapuri ini dengan betul.

Di dapur kecil, hanya ada tempat untuk meja makan penuh, jadi lebih baik memindahkannya ke bilik bersebelahan, dan untuk makanan ringan di dapur itu sendiri menggunakan kaunter bar padat
Untuk melakukan ini, dalam artikel ini kami memberikan tip reka bentuk dari pakar dalam bidang reka bentuk. Dan di sini, nasihat orang kita sendiri:
- Gunakan perabot padat. Perhatikan keadaan berfungsi. Ia boleh menjadi sofa lipat di ruang makan, yang dilengkapi dengan rel khusus untuk menyimpan hidangan, peralatan rumah tangga dan barangan isi rumah yang lain.

Di dapur kecil, walaupun ambang tingkap harus menjadi bahagian berguna dalam pedalaman fungsi
- Memberi perhatian khusus kepada hiasan dinding dan siling. Gunakan pengetahuan khusus yang akan membolehkan anda untuk mencapai kesan unik di dapur 5 5 meter persegi di Khrushchev.

Perabot ringan dan hiasan dinding dalam warna pastel hangat menyumbang kepada peningkatan visual dalam ruang.
- Menganalisis bilik dari segi pencahayaan dengan sinaran semulajadi matahari. Data ini berguna kepada anda untuk memahami keperluan untuk memasang lampu lampu tiruan tambahan.

Reka bentuk tingkap harus dipikirkan supaya pada waktu siang pembukaan tetap terbuka. Tirai Rom atau roller adalah pilihan yang baik.
- Pengembangan visual mesti hadir di Khrushchev. Untuk mengembangkan ruang secara melintasi lebar ruang, dinding harus mempunyai jalur mendatar di hiasan dalaman. Juga, warna cahaya di pedalaman boleh memberikan kuadrat tambahan. Tetapi jangan gunakan jalur menegak. Walaupun mereka menolak siling, mereka akan diambil dari lebarnya.

Satu contoh yang baik untuk meluaskan ruang dengan jalur mendatar
- Jika boleh, letakkan peti sejuk di lorong atau di ruang tamu. Keputusan sedemikian akan membebaskan ruang untuk seluruh keluarga.
- Jika perancangan membolehkan, menggabungkan dapur dengan ruang tamu. Langkah-langkah drastik ini akan mengubah reka bentuk dapur di Khrushchev 5 5 dengan ketara.
Dengan menggunakan tip-tip yang diberikan oleh tuan reka bentuk yang berpengalaman dalam bidang seni reka bentuk, anda akan dapat menganjurkan hiasan dalaman mengikut semua kanun moden.

Tata letak sudut - penyelesaian terbaik untuk dapur di Khrushchev. Objek yang paling dimensi terletak di sudut, meninggalkan ruang kosong untuk bergerak atau menempatkan elemen dalaman tambahan
Reka Bentuk Gabungan
Reka bentuk yang digambarkan dalam gambar di bawah dapur adalah 5 meter di pangsapuri sebenar seorang pemilik, dibingkai dengan menggunakan kaedah menggabungkan dengan ruang tamu. Bagi Khrushchev, penyelesaian semacam itu adalah yang paling menguntungkan. Tidak ada banyak ruang di sini, tetapi dengan cara ini ternyata untuk mendapatkan ruang yang besar, yang akan menampung seluruh keluarga.

Selepas menggabungkan bilik, ruang umum kelihatan lebih bebas dan mewujudkan keadaan yang sangat baik untuk komunikasi keluarga
Tetapi untuk menjadikan kombinasi dua bilik ini, anda perlu melakukan usaha yang diperlukan. Pelaksanaan langkah-demi-langkah semua langkah akan membawa kepada keputusan yang positif. Mari tunjukkan mereka:
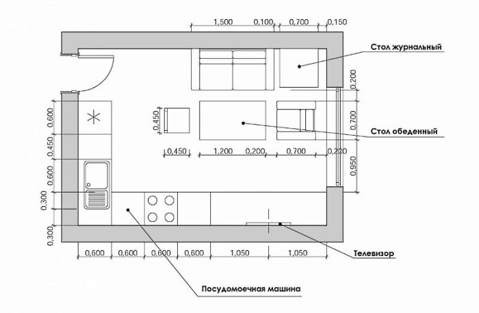
- Lukis pelan yang mencerminkan semua perkara penting. Ini termasuk lokasi perkakas rumah, perabot, set dapur, ruang makan, bar sarapan, TV, dan barang-barang dalaman yang lain. Susun atur masa depan bergantung pada susunan bersama mereka.

Mengenai rancangan itu, perlu memaparkan lokasi perabot dan perkakas rumah dengan saiz sebenar mereka
- Hubungi pejabat inventori teknikal tempatan anda untuk jurutera di jabatan. Pada peringkat ini, adalah perlu untuk mengetahui kemungkinan pembinaan semula. Bawa rancangan anda, yang, dengan cara itu, disediakan mengikut norma dan peraturan (SNiPam). Mereka akan memberitahu anda dinding mana yang boleh dirobohkan dan yang tidak boleh (perobohan).
- Selepas kelulusan pelan, anda perlu mendapatkan kebenaran untuk menjalankan kerja modal. Tulis pernyataan dan anda akan diberi kebenaran untuk memulakan pembinaan semula.
- Selepas menerima kertas rasmi, sila hubungi jiran-jiran. Biarkan mereka tahu bahawa anda merancang kerja modal. Akan ada banyak bunyi dan lebih baik jika orang mengetahui tentang ini terlebih dahulu.
- Selepas manipulasi ini, anda perlu membuat projek reka bentuk. Hanya selepas susun aturnya kita boleh mula memusnahkan bahagian tambahan dinding. Anda mungkin perlu menyesuaikan pelan.
Jangan lupa pada lukisan untuk menunjukkan laluan rangkaian utiliti di dalam dinding (bekalan air, rangkaian elektrik, kumbahan, penempatan soket). Pelaksanaan bertahap kerja akan memastikan penamat berkualiti tinggi selama bertahun-tahun operasi.

Susun atur soket dan suis yang disyorkan di kawasan kerja dapur
Bagaimana untuk membuat projek reka bentuk?
Untuk reka bentuk yang kompeten ruang dapur, pemilihan set, kertas dinding, hiasan lantai, siling, elemen hiasan dan perabot, penyediaan projek reka bentuk adalah peringkat penting. Tindakan ini melibatkan lukisan perspektif dalam satu atau dua sistem. Ini menunjukkan penggunaan satu atau dua titik penumpuan.
Titik konvergensi pada lakaran digambarkan pada awal reka bentuk. Ia mewakili tempat di mana semua garis mendatar dan separa menegak dalam angka menumpu. Ini mewujudkan kesan menghapus lakaran, memberikan kedalaman, ekspresi dan kejelasan kepada imej.

Titik hilang adalah titik di cakrawala di mana garis-garis itu menumpuk ke jarak
Untuk menentukan bilangan titik ini, anda perlu memahami saiz bilik masa depan yang anda reka. Lebih besar ruang, lebih berfaedah akan menjadi penggunaan dua titik penumpuan.
Dan inilah urutan lukisan lakaran perspektif:
- Menyediakan beberapa helai kertas, pensil, penguasa, pemadam. Anda juga akan memerlukan cat, pen mereset atau pensel berwarna.
- Penanda persegi dikenakan pada selembar kertas. Saiz dan bilangan petak bergantung kepada kuadratur ruang dapur. Sekiranya anda melukis ruang tamu dapur, tentu saja, akan terdapat lebih banyak kotak.
Lukis mata lenyap Lukiskan garisan bilik Lukiskan segi empat tepat - Selepas menggunakan petak, pergi ke petunjuk garisan siling, dinding, tingkap dan bukaan pintu.
Lukiskan garis dari titik asal Lukiskan garis menegak Lukiskan garis melengkung - Seterusnya, gunakan perabot dalaman, kabinet, dan juga tekstur anggaran dinding, lantai. Tata letak siling sangat mudah untuk digambarkan pada lakaran perspektif. Jika anda bercadang untuk memasang di beberapa tahap, imej awal pilihan akan menjadi penyelesaian yang baik.
Kami melukis meja atas meja Tambah butiran kecil Kami menarik kaki meja - Pada peringkat terakhir, elemen hiasan, lukisan, gambar, peralatan rumah, lampu, langsir dengan tirai dan tirai digunakan. Gunakan pensel berwarna atau cat air. Menggunakan yang terakhir, anda boleh mendapatkan corak unik yang akan memberi inspirasi kepada anda untuk membuat reka bentuk kreatif.
Pergi ke kerusi Lukiskan sedutan Kami memuktamadkan butir-butirnya

Sekarang padamkan semua baris tambahan dan pewarnaan lakaran kami
Buat beberapa kemasan sekaligus. Selepas melukis yang terakhir, pilih yang terbaik, sesuai dan bawa ia ke kehidupan.
Pilihan gaya
Sebelum membeli dapur sudut di Khrushchev 5 meter, anda perlu membuat keputusan mengenai gaya pedalaman. Trend moden membolehkan anda kreatif menghiasi pedalaman, memberikannya gambaran yang tidak dapat dilupakan. Berikut adalah destinasi yang popular:
- Provence.
- Gaya aristokrat Inggeris.
- Minimalisme
- Motif Jepun.
- Hi-tech.
- Motif Scandinavia.
- Gaya Mediterranean.

Pedalaman klasik kelihatan kaya, selesa dan tidak pernah keluar dari gaya

Dapur gaya minimalis selalu mempunyai ketenteraman dan ketenangan
Pilihan keputusan gaya tertentu dipengaruhi oleh sifat penduduk apartmen, pilihan makanan mereka.
Untuk saiz Khrushchev kecil, adalah penting bahawa palet warna adalah cahaya. Ini akan mengembangkan ruang secara visual. Untuk kejelasan persembahan, mari kita ambil contoh reka bentuk ruang dapur.
Contoh reka bentuk ruang dapur
Pertimbangkan versi hiasan dalaman yang menarik. Lantai itu selesai dengan jubin seramik. Padan format segi empat bagi setiap jubin individu. Tekstur boleh diubah: glossy atau matte. Warna juga sangat menarik. Motif putih dan hitam atau putih dan kelabu akan dilakukan.

Adalah wajar untuk meletakkan jubin secara menyerong - seperti meletakkan secara visual meningkatkan kawasan bilik
Dinding boleh dilukis dengan cat kelabu muda. Teduh cahaya adalah wajar. Ini akan mewujudkan suasana yang bersih dan tenang, yang akan menyenangkan.
Siling boleh dipasang pelbagai peringkat. Ini akan berjaya menghiasi dapur di Khrushchev, memberikannya luar biasa. Buat tata letak siling standard. Untuk melakukan ini, biarkan bahagian luar, berhampiran dinding, menonjol, dan bahagian tengah, sebaliknya, mendalam ke siling. Di hujungnya, letakkan di jalur LED, dan sepanjang bahagian menonjol - lampu sorot LED. Yang pertama akan menambah cahaya, airiness dan kehangatan ke ruang dapur anda, yang kedua akan memberikan pencahayaan cemerlang pada waktu malam.

Pembinaan dua tingkat drywall dapat membezakan kawasan kerja, dan menutup seluruh permukaan siling dengan kain regangan
Secara langsung dapur dipilih dalam saiz. Palet warna harus diubah. Dalam kes kita, kita menggunakan warna hijau yang terang, bersama-sama dengan kelabu atau kuning air yang terang. Perhatikan apron. Adalah dinasihatkan untuk membuat nada lantai. Satu-satunya pengecualian adalah saiz jubin seramik. Ia sepatutnya dalam format yang kecil.

Set perabot yang terbaik dibuat untuk memerintahkan saiz tertentu
Selesaikan dapur anda menggunakan kayu penuaan buatan. Untuk tujuan ini - gaya Provence adalah sempurna.Pintu kabinet pintu kabinet yang dibingkai oleh panel yang indah, panci yang diatur secara teratur dengan violet dan ungu. Untuk dapur kecil di Khrushchev, gaya Provence sangat sesuai.

Gaya desa akan mewujudkan suasana rumah yang selesa di dapur
Lihat pilihan gambar-gambar dapur yang direka dalam gaya kontemporari pada akhir artikel. Kami telah memilih pilihan terbaik semua yang mungkin. Anda pasti dapat mencari sesuatu untuk diri anda sendiri.
Video: 5.5 meter persegi keseluruhan tinjauan dapur m. di Khrushchev





























































