La cuisine
Choisir la bonne combinaison de couleurs à l'intérieur de la cuisine
Lors de la réparation d'un appartement, et en particulier d'une cuisine, la question se pose souvent de savoir comment réparer rationnellement cette zone, est-il possible de combiner avec d'autres locaux par un réaménagement. L'une des options pour une telle combinaison est la combinaison de la cuisine et du salon. Avec le réaménagement, nous obtenons un espace de 20 mètres carrés.

Une superficie de 20 carrés vous permet de réaliser toutes les idées de conception et de créer une cuisine-salon, pratique pour tous les membres de la famille
Dans certains studios, souvent ces deux pièces sont déjà combinées, mais dans la plupart des cas, il est nécessaire de faire un réaménagement majeur.
Contre une telle décision
Table des matières
Gêne due à la perte d'une pièce séparée. Ici, nous parlons de l'utilisation initiale du salon, s'il s'agissait également d'une chambre, le sommeil et la paix peuvent être perturbés en raison des visites dans la cuisine du ménage.
- Odeurs de cuisine. Si la hotte n'est pas assez forte, les odeurs se déposent et pénètrent dans les meubles, et s'en débarrasser n'est pas si simple.
- Grand seuil de bruit. Dans le salon, il y aura maintenant le bruit d'un réfrigérateur en état de marche, de hottes, d'eau lors de la vaisselle, ainsi que des sons provenant d'autres appareils ménagers.
- La vaisselle doit être lavée à temps, car avec une cuisine séparée, la montagne d'assiettes dans l'évier n'a pas violé l'aspect esthétique de la pièce.
- Investissements financiers approfondis. De telles réparations coûteront beaucoup plus qu'une simple cuisine ou un salon.

Une contamination rapide de la salle commune nécessitera un nettoyage plus fréquent.

Une bonne hotte de cuisine résoudra le problème dans une certaine mesure, mais il est impossible de se débarrasser complètement des mauvaises odeurs
Si, néanmoins, une décision a été prise de re-planifier la salle, alors nous devons être préparés aux nuances de la démolition du mur:
- À Khrouchtchev, la réorganisation de la salle est très facile. Les murs intérieurs sont en briques et seuls les murs avant sont porteurs.
- Dans les maisons à panneaux, les choses sont plus compliquées. Dans de telles maisons, en règle générale, la cloison entre les deux pièces est en béton et en même temps est le roulement. Les blocs de plancher reposent sur le mur porteur et lorsqu'un mur est démoli, des fissures peuvent se former dans le bâtiment et la maison peut simplement s'effondrer.

Après la démolition du mur, la cuisine reste à sa place, car toutes les communications s'y trouvent, et leur transfert n'a pas de sens pratique
Faites attention! La démolition du mur porteur ne peut en aucun cas se faire.
Beaucoup ignorent cette règle, mais grâce aux technologies modernes et aux secrets de construction, ils ont appris à le faire. Ici, nous devons transpirer. Le mur de béton est démantelé au diamant et les restes sont renforcés par des canaux métalliques. Le mur n'est pas complètement enlevé, mais un morceau de béton est laissé à la jonction avec les blocs qui se chevauchent et il est nécessaire de renforcer ce mur avec du métal des deux côtés. Mais avant un tel réaménagement, il faut obtenir une autorisation et préparer le projet à l'avance.

Pour le réaménagement devra obtenir la permission et faire un projet
Comment identifier un mur porteur
Lors de la création d'un studio cuisine-salon, il est nécessaire de déterminer à l'avance le mur porteur ou non, cela peut se faire comme suit:
- Voir dans la fiche technique - les murs porteurs seront mis en évidence par une ligne épaisse.
- Frappez sur le mur - nous ressentons une légère vibration et un son retentissant, alors le mur ne porte pas.
- S'il n'y a pas de finition au plafond, vous pouvez également le déterminer. Les murs porteurs vont aux joints des planchers.
Ainsi, sous toutes les nuances, vous pouvez effectuer un réaménagement en toute sécurité.
Méthodes de zonage spatial
La cuisine et le salon combinés donnent une superficie de 20 mètres carrés, et souvent il y aura deux fenêtres dans la pièce. Dans ce cas, il est important de fournir toutes les subtilités du futur intérieur basées sur l'équipement des trois zones principales.
- Zone de cuisson (cuisine) - les principaux éléments sont un comptoir, un évier, une cuisinière, un réfrigérateur et une hotte.
- Coin repas - table avec chaises.
- Séjour (hall).

Un exemple de combinaison réussie d'un salon, d'une cuisine et d'une salle à manger dans un espace commun
Important! La création d'un projet d'aménagement complet de la cuisine-salon intervient avant la démolition du mur. Cela est dû au fait qu'il n'est pas toujours nécessaire de démolir tout le mur.
Alternativement, un morceau de mur peut séparer la zone de travail de la zone de repos. Ceci est pertinent dans les pièces avec deux fenêtres sur un mur. D'une part, il y aura un espace de travail dans la cuisine, et du deuxième côté, un coin repas sera idéalement situé à la fenêtre. Vous pouvez également laisser une partie des murs pour créer une base de bar ou d'étagère.

La photo montre la possibilité d'organiser un comptoir de bar à la place d'une cloison lumineuse
Une façon courante de zoner l'espace est la création de différents niveaux d'étage. Le coin cuisine est surélevé en moyenne de 10 centimètres de podium. Cette solution non seulement divise les pièces, mais permet également d'installer des cloisons en verre supplémentaires. Ils peuvent être fermés pendant la cuisson afin que les odeurs se déposent moins sur la surface du meuble.

Soulever le podium trop haut ne vaut pas la peine, il est permis d'organiser une ou deux étapes. Un piédestal plus élevé ne sera pas pratique à déplacer
Le comptoir de bar est la principale option fonctionnelle de zonage de l'espace. Avec de tels éléments, nous obtenons immédiatement une surface de travail confortable, une salle à manger et une séparation de la pièce. Le drain peut être installé à la fois à l'ancienne jonction des pièces (dans ce cas, vous ne pouvez pas retirer une partie du mur et l'utiliser pour la fondation), et à une distance différente en installant un support sur de hautes jambes. Souvent, depuis le salon, sous le bar, mettez un canapé ou un canapé, sans le sortir dans un endroit séparé.

La conception et la décoration du comptoir du bar sont sélectionnées en fonction du style choisi
Les structures de plafond servent également à diviser l'espace. En abaissant le plafond dans la cuisine plus bas que dans le hall, nous diviserons l'espace et nous pourrons créer les bases de l'éclairage, ce qui divise également l'espace en zones.

Un plafond en plaques de plâtre à plusieurs niveaux aidera à différencier l'espace de la cuisine-salon
L'éclairage joue un rôle important. De la lumière doit être fournie au-dessus de chaque zone. Des lampes directionnelles doivent être placées au-dessus de la zone de travail pour éclairer le processus de cuisson. Dans les salles à manger et le salon, vous pouvez installer des lampes à lumière diffuse, une telle lumière est plus douce et crée des conditions de confort.

Un éclairage supplémentaire doit être installé dans chaque zone fonctionnelle
Les meubles rembourrés peuvent également être utilisés pour le zonage de l'espace. Rappelons la série "Friends", où le salon était séparé de la cuisine avec un canapé et une paire de fauteuils. Le canapé est généralement placé à la limite des locaux face au hall. L'avantage de cette disposition est qu'il n'est pas nécessaire d'installer des éléments supplémentaires et que l'éclairage naturel de la pièce est préservé.

Un canapé et une barre de petit déjeuner divisent l'espace en un coin cuisine et un coin salon

Possibilité de diviser une pièce en zones à l'aide d'une table à manger
De cette manière, les canapés et fauteuils à dossier haut, les commodes ou autres accessoires sont plus souvent utilisés.
Cuisine-salon rectangulaire de 20 mètres carrés. m - créer un intérieur
Dans une telle pièce, il y aura beaucoup d'espace libre, et donc le design peut être varié.
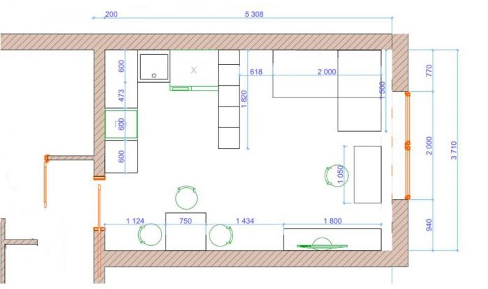
La règle principale dans une telle pièce sera la règle du triangle lors de l'aménagement de l'espace de travail. Ses sommets sont un évier, une cuisinière et un réfrigérateur. Ils sont placés près les uns des autres, créant visuellement un triangle, l'essentiel n'est pas de mettre ces objets dans le cul.Cette approche ne fera pas mal aux yeux et donnera une sensation de confort.

L'évier, le poêle et la table de travail doivent être proches et il ne doit y avoir aucun obstacle entre eux.
Pour une cuisine-salon de 20 mètres carrés dans la zone de travail, les gros appareils d'éclairage doivent être évités, les petites suspensions sont idéales, et non un grand lustre pompeux.
Il existe des normes pour la distance entre les principaux appareils de la cuisine:
- De l'évier au poêle de 60 à 180 centimètres.
- De l'évier au réfrigérateur de 45 à 210 cm.
Cela est dû à la commodité de la vitesse de cuisson, les éléments principaux sont à 1-2 échelons les uns des autres et ne bloquent pas l'espace.
Il existe six dispositions de base pour une pièce rectangulaire:
- En forme de U. Les meubles sont installés les uns à côté des autres - à deux pas. La partie principale de la lettre P sera égale à 240-400 centimètres, et le côté - de 120 à 280 centimètres.

Dans une telle cuisine, il est très pratique de cuisiner et de nettoyer
- En forme de L. Les meubles du salon et de la cuisine forment la lettre G. Le mur opposé à l'ensemble mou sera libéré du mobilier pour y placer des peintures ou d'autres éléments décoratifs. Cette méthode d'agencement est idéale pour les pièces avec deux fenêtres sur le même mur.

L'option d'angle convient à la plupart des pièces rectangulaires combinées
- Disposition péninsulaire. Les principales zones de travail sont supprimées par les îles, et seuls les placards et les étagères quittent les murs.

La péninsule est généralement une table multifonctionnelle
- Double rangée. Le nom parle de lui-même - les meubles dans le salon et l'ensemble de cuisine créent visuellement deux rangées. La deuxième rangée est généralement exprimée par un canapé ou un canapé et une étagère au sol parallèle. Le zonage dans ce mode de réalisation se fait à l'aide de la barre. La moitié de la pièce - près de la fenêtre ils laissent libre, ils y équipent une aire de loisirs ou un bureau. La disposition est pratique pour les studios Odnushki.

La disposition à deux rangées convient mieux à une pièce carrée
- Linéaire Tout dans une rangée - c'est important si la pièce est étroite et longue, et qu'un mur est occupé par des fenêtres.

Du point de vue de la cuisson, une disposition linéaire est la plus gênante, c'est donc plutôt une mesure nécessaire pour placer une gêne
- Île. Le mobilier est placé au centre de la pièce (la série "Friends"). Cette disposition convient mieux aux pièces carrées.

La disposition de l'île est adaptée à une mini-île, tandis que la salle à manger sera également compacte
Quel style choisir pour une cuisine-séjour de 20 m²
Récemment, le style scandinave est devenu de plus en plus populaire dans la conception. Ce style se caractérise par des couleurs claires, un minimalisme et des matériaux plus naturels.

La cuisine est située dans une niche spécialement aménagée.
Couleur blanche - requise avec ses nuances. Il va bien avec le rose, le bleu et le jaune. Le blanc devrait être le principal.

Les chaises blanches vont bien avec une table en bois, des modèles pliants sélectionnés pour économiser de l'espace
Matériaux naturels - métal, bois, céramique. Ils sont tous obligatoires dans ce style, les meubles sur de fines jambes en métal ou un tablier en céramique fait de carreaux "sanglier" dans la cuisine auront l'air élégant et élégant.

Il vaut mieux choisir un canapé pliant avec une couchette

Avec un budget limité, vous pouvez économiser du matériel en choisissant des panneaux de particules pour les meubles
L'absence de rideaux est une autre caractéristique de ce style. Le style scandinave permet une utilisation maximale de la lumière naturelle. Les rideaux, s'ils sont présents à l'intérieur, ne glissent jamais et ont un rôle purement décoratif.

L'option sans rideaux sur la fenêtre convient pour un appartement au niveau supérieur d'un immeuble à plusieurs étages
Les textiles dans la pièce doivent être légers et aérés, et l'éclairage ne doit être que dans des couleurs chaudes.
Vidéo: de nouvelles idées pour les 20 m² mètres






















































